Ref
Busco
Tipo
En
Zona
Habitaciones
Baños
Características
Precio
Ref. 3401 373 m2 66 m2 5 5 4
venta: 2.385.500 

Exclusiva villa independiente lista para entrar a vivir, ubicada en una de las zonas más codiciadas de Costa Adeje.

La villa se integra armoniosamente en el paisaje, con líneas arquitectónicas limpias, vegetación autóctona, vistas al mar y espacios diseñados para disfrutarse tanto en el interior como en el exterior durante todo el año. Ha sido concebida para maximizar la luz natural gracias a sus grandes ventanales y su orientación sur, que inundan cada estancia de luminosidad. Materiales nobles, tecnología integrada y una funcionalidad elegante definen cada detalle.
Situada a pocos minutos de la playa y de las principales zonas comerciales y de ocio del sur de la isla, la vivienda ofrece un equilibrio perfecto entre tranquilidad, privacidad y cercanía a todos los servicios.
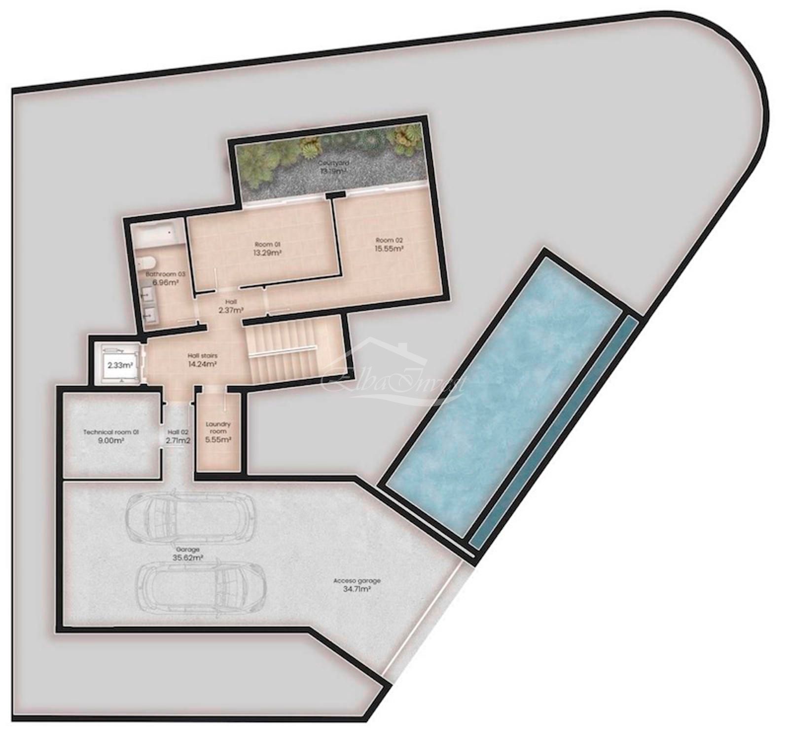
La propiedad se asienta sobre una parcela privada de aproximadamente 500 m² y cuenta con más de 300 m² construidos, distribuidos en tres niveles: planta principal, planta superior y planta inferior. Dispone de tres dormitorios en suite, uno o dos de ellos con vestidor, una cocina abierta integrada en el salón y un aseo de cortesía en la planta principal.
La planta inferior, con iluminación natural, ofrece estancias polivalentes, ideales como gimnasio, despacho, sala de cine o zona de ocio, además de un baño adicional, lavandería, sala técnica y espacios de almacenamiento.
En el exterior, la villa destaca por su piscina infinita climatizada privada de 32 m², terrazas y porches perfectamente orientados para disfrutar del clima durante todo el año, así como por sus impresionantes vistas panorámicas al océano. La vivienda cuenta garaje privado cerrado para varios coches, ascensor privado y una distribución completamente accesible.

Incluido en el precio:

  • Cocina totalmente equipada con electrodomésticos Bosch
  • Sistema de purificación de agua por ósmosis inversa y descalcificador
  • Baños en suite completamente equipados
  • Vestidores y armarios empotrados totalmente terminados
  • Ascensor para 6 personas (apto para silla de ruedas)
  • Sistema domótico (Smart Home)
  • Aire acondicionado, ventilación y filtración HEPA
  • Iluminación LED empotrada interior y exterior
  • Sistema Wi-Fi interior y exterior
  • Piscina infinita climatizada de 32 m²
  • Duchas en zona de piscina y terraza principal
  • Accesorios de piscina (cubierta automática sumergida)
  • Jardín paisajístico con sistema de riego programable
  • Detectores de humo en cocina y sensores de inundación en zonas húmedas
  • Videoportero

Extras disponibles:

  • Sistema domótico Plus
  • Sistema de alarma de seguridad
  • Sistema de videovigilancia y sensores de movimiento exteriores
  • Equipamiento de audio Sonos interior y exterior
  • Accesorios de piscina (cloración salina, nado contracorriente, cascada)
  • Zona SPA / Wellness
  • Cargador trifásico para vehículo eléctrico
  • Iluminación decorativa interior y del jardín
  • Mobiliario y decoración

Fotos y textos son de carácter informativo. 

Índice de alquiler

Construidos 373 m2
Útiles 305 m2
Parcela 500 m2
Precio/m² 6.395
Terraza 66 m2
Dormitorios 5
Baños 5
Cocina Amueblada
Trastero
Garajes 4
Carp. Exterior PVC
Carp. Interior madera lacada
Estado A estrenar
Tipo de suelo cerámico
Ascensor
Aire acondicionado
Piscina privada
Calificación Energética (G) VER
Luz
Agua
Alarma interior
Acceso discapacitados

Vídeos

La dirección del inmueble es aproximada.

Inmuebles similares:

 
Villa de lujo en venta en Costa Adeje, con 405 m2, 5 habitaciones y 5 baños, Piscina, 4 plazas de Garaje, Trastero, Ascensor y Aire acondicionado.
 405 m2  5  5
2.149.500 €
 
Villa de lujo en venta en Costa Adeje, con 340 m2, 3 habitaciones y 4 baños, Piscina, 4 plazas de Garaje, Ascensor y Aire acondicionado.
 340 m2  3  4
5.000.000 €
Contacta con tu asesor
Alex Petrusevics
Solicita información

Si deseas más información sobre esta propiedad, por favor, rellena el formulario:

Oficina Principal – Main office
Plaza Cruz del Llano 59
38670 - Adeje, Santa Cruz de Tenerife

Sucursal - Branch
Calle Hermano Pedro, 7 Local 2
38670 - Adeje, Santa Cruz de Tenerife